3000 15 Street NE, Calgary. T2E 8V6
Description
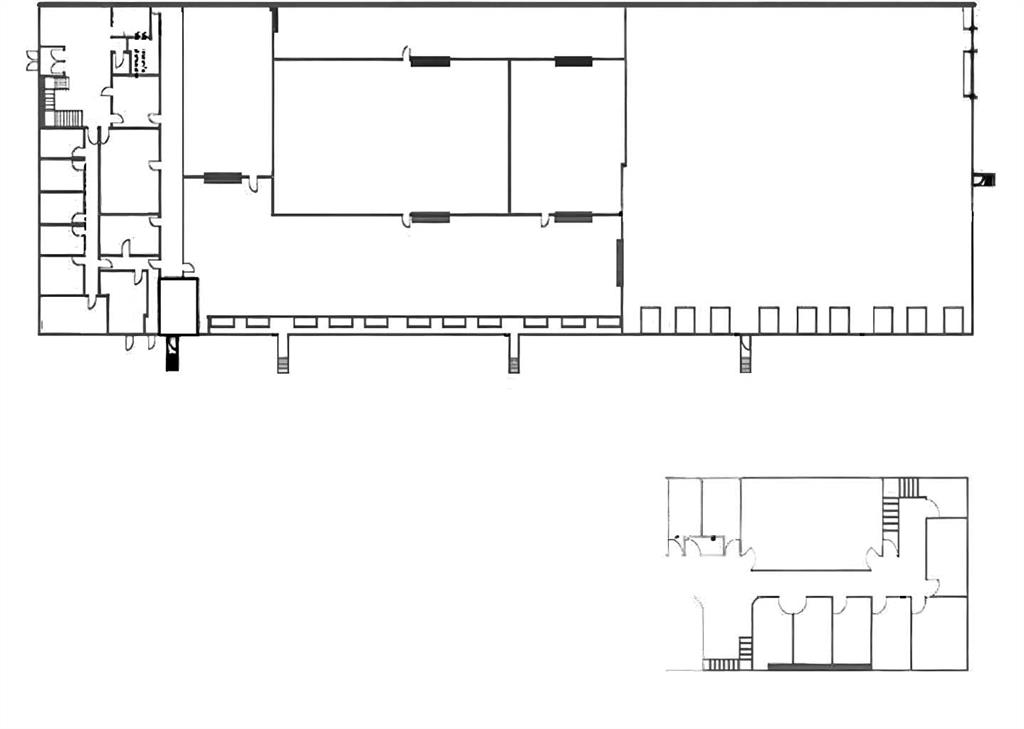
This 55,276 SF CFIA-approved production facility is situated on 6.11 acres in the South Airways Industrial Park and offers a rare combination of cooler, freezer, and food production space, with substantial upgrades completed in 2022. The property features an excellent dock door ratio ideal for distribution and cross-docking, including 20 dock doors, 26 courier dock doors (currently closed off), and two drive-in doors. It includes 12,479 SF of well-appointed office space over two floors with multiple private offices, boardrooms, and washrooms on each level, as well as 42,797 SF of warehouse space comprising processing areas, cooler and freezer areas, loading docks, and general warehouse space. The building is equipped with recently upgraded power to approximately 1,200 amps, 600 volts, three-phase (to be confirmed), and an ESFR sprinkler system throughout. The site offers 107 parking stalls and 40 trailer storage stalls, along with the potential to expand the building by approximately 20,000 SF. The property provides convenient access to 12 Street NE, 32 Avenue NE, and Deerfoot Trail NE, with availability negotiable and further details available in the brochure.
Listing Information
For fast response, please email us via the “Inquiry Via Email” button with your contact information.
Listing MLS#:A2276441
3000 15 Street NE,
Calgary. T2E 8V6
Liang Commercial Real Estate
To purchase a business or property, please visit "Our People", to find a commercial expert who specializes in the type of business or property you are looking for, speaks your language, and has an office in your city.
This listing is presented by CENTURY 21 BRAVO REALTY, courtesy of "CDN Global Advisors Ltd." listing brokerage.
Google map



