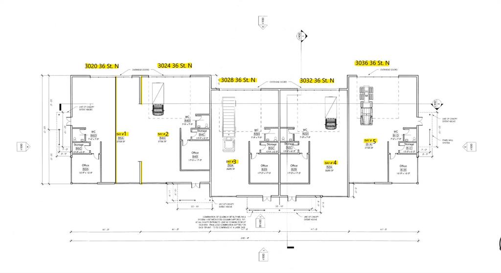
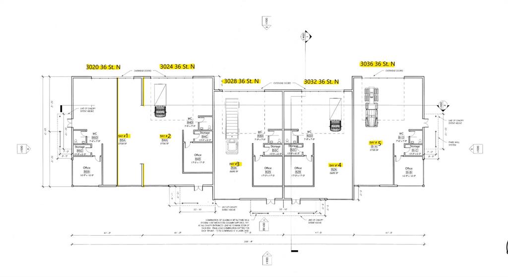
3036 36 Street N, Lethbridge. T1H 7B5
Description
The subject property is part of a desirable development and offers an energy-efficient design, a paved yard and driveway, with great visibility. The unit features a large open shop space in the rear with 20’ ceiling height, one 14’x16’ OHD, and a make-up air unit. Located at the intersection of 36 Street and 32 Avenue North, the property is surrounded by successful businesses and anchored by Wal-Mart and the Lethbridge Sports Park. With easy corner access, the property is a great fit for warehousing, general trades, light manufacturing, and other light industrial users. The location offers convenient and easy access for large vehicles with an exceptional highway infrastructure corridor. - 3-Phase, 200 AMP electrical - 20’ clear span ceilings - One 14’x16’ OHD - Energy efficient design - Desirable location
Listing Information
For fast response, please email us via the “Inquiry Via Email” button with your contact information.
Listing MLS#:A2265919
3036 36 Street N,
Lethbridge. T1H 7B5
Liang Commercial Real Estate
To purchase a business or property, please visit "Our People", to find a commercial expert who specializes in the type of business or property you are looking for, speaks your language, and has an office in your city.
This listing is presented by CENTURY 21 BRAVO REALTY, courtesy of "AVISON YOUNG" listing brokerage.
Google map



