6163 6 Street SE, Calgary. T2H 1L9
Description
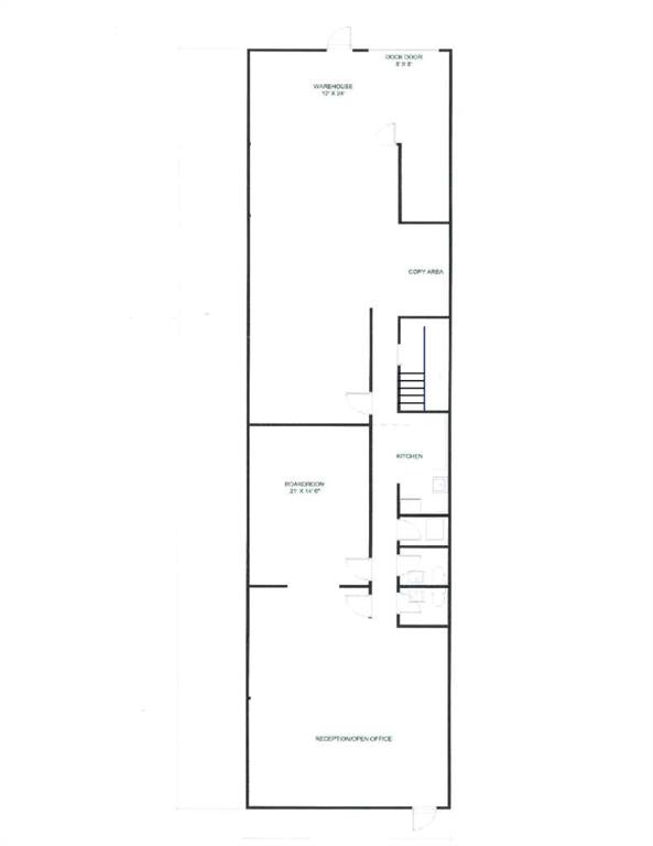
Rare 2,304 SF industrial bay located in Manchester Industrial Park with direct visibility to Blackfoot Trail SE. The space features a large front showroom, two spacious offices, a kitchenette, and two washrooms, totaling approximately 1,344 SF of office space. At the rear of the unit is approximately 960 SF of warehouse space, equipped with 100 amps of power (TBV), one dock door (8 ft x 8 ft), and a bonus storage mezzanine (free of charge). Reserved parking plus street parking are available. The property offers close proximity to 58 Avenue SE, Blackfoot Trail SE, Glenmore Trail SE, and Deerfoot Trail SE. In addition, near Chinook Mall and Chinook LRT station. The lease rate is $16.00 PSF with step-ups, plus operating costs of $8.60 PSF, for a gross rate of $24.60 PSF. This
Listing Information
For fast response, please email us via the “Inquiry Via Email” button with your contact information.
Listing MLS#:A2277490
6163 6 Street SE,
Calgary. T2H 1L9
Liang Commercial Real Estate
To purchase a business or property, please visit "Our People", to find a commercial expert who specializes in the type of business or property you are looking for, speaks your language, and has an office in your city.
This listing is presented by CENTURY 21 BRAVO REALTY, courtesy of "CDN Global Advisors Ltd." listing brokerage.
Google map



