1104 & 1204, 100 Alpine Meadows , Canmore. T1W 1L1
Description
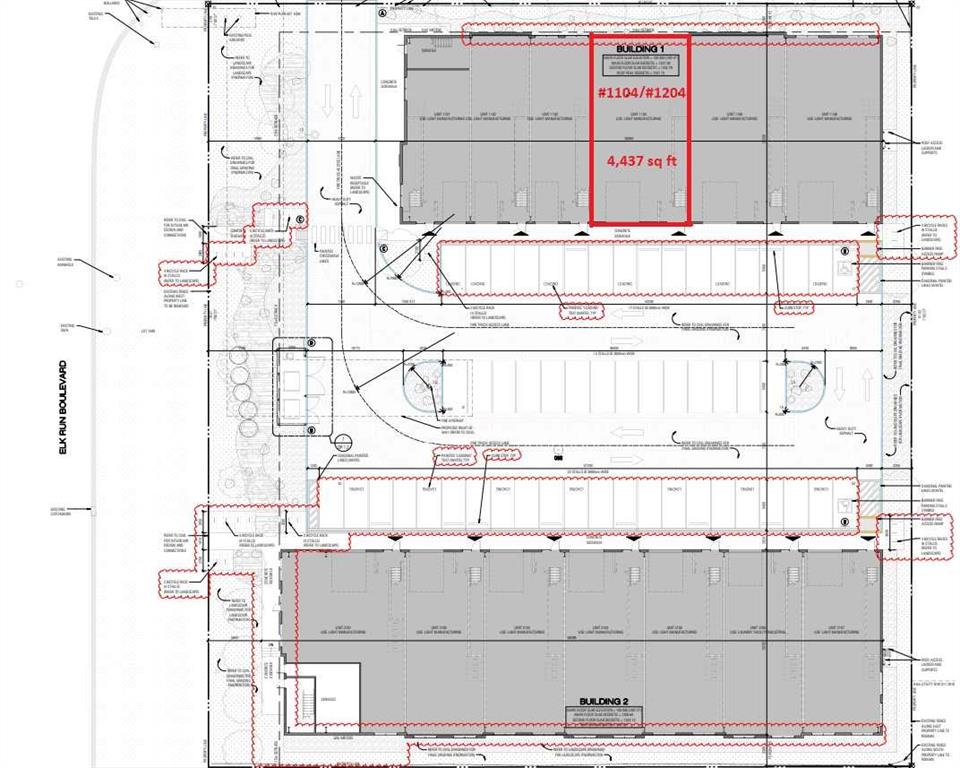
Elk Meadows is Canmore's newest warehouse development showcasing an updated Alpine architecture. With high exposure to Elk Run Boulevard and proximity to the Trans-Canada Highway, the property offers quick access to all areas of Canmore and the surrounding region. This well-engineered two-storey building incorporates structural steel construction and concrete floors. The unit offers a total of 4,140 sq. ft. with 2,043 on the main floor and 2,097 on the 2nd floor. Main floor features a 12' x 12' drive-in door and 16' clear ceilings whereas 2nd floor has 12' clear ceilings. Abundant natural light fills the 2nd floor making it ideal for administrative and office operations. Each floor is serviced by 200A, 208V power, and the building is equipped with a full sprinkler system. This is an excellent opportunity for contractors, service companies, breweries, recreational facilities, offices, studios, and pubs. The Landlord will construct a washroom and office on the main floor, as well as a washroom and new furnace room on the second floor. Operating costs are in addition to base rent and estimated at $7.40 sq ft. Available immediately.
Listing Information
For fast response, please email us via the “Inquiry Via Email” button with your contact information.
Listing MLS#:A2292254
1104 & 1204, 100 Alpine Meadows ,
Canmore. T1W 1L1
Liang Commercial Real Estate
To purchase a business or property, please visit "Our People", to find a commercial expert who specializes in the type of business or property you are looking for, speaks your language, and has an office in your city.
This listing is presented by CENTURY 21 BRAVO REALTY, courtesy of "LB Hubbard Realty Group" listing brokerage.
Google map



