Unit 2001, 4 Highland Park Green NE, Airdrie. T4A 2G2
Description
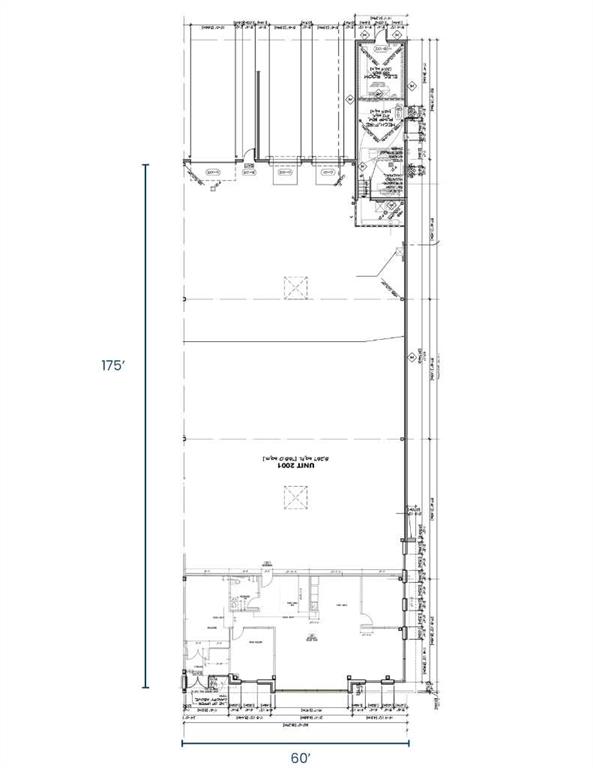
8,267 Sq. Ft. ‘A’ class industrial bay with dock and drive-in located in Airdrie’s Highland Park Industrial, which is Airdrie’s newest industrial park with high quality architectural controls. Airdrie has favorable property taxes compared to the City of Calgary, which has attracted many tenants and owner-users to this area. Developed by Beedie and awarded for excellence from the Urban Development Institute (UDI). The building is constructed in insulated concrete panels and EPDM roofing system. Quality industrial space with 1 drive-in door (12 Ft w x 14 Ft h) and 2 dock door (8 Ft w x 10 Ft h). Quality office space, which includes two private offices, open concept, kitchenette, and one accessible washroom. 5,367 SF of warehouse, 200 Amps of power at 347/600 Volts, 26 Ft of clear ceiling height, T5H0 lighting, two 6 Ft. x Ft. skylights, and ESFR sprinklers. And this bay also includes ample parking of 12 reserved parking stalls. No business tax and lower property tax compared to Calgary. Only three minutes to Highway 2 (QEII) and 12 minutes to City of Calgary (Stoney Trail). The Lease rate is starting at $14.00 PSF with Operating costs at $5.14 (Est. 2026). Thus a total of $19.14 PSF (Approx. $13,200/month + Utilities + GST). Availability is negotiable.
Listing Information
For fast response, please email us via the “Inquiry Via Email” button with your contact information.
Listing MLS#:A2298448
Unit 2001, 4 Highland Park Green NE,
Airdrie. T4A 2G2
Liang Commercial Real Estate
To purchase a business or property, please visit "Our People", to find a commercial expert who specializes in the type of business or property you are looking for, speaks your language, and has an office in your city.
This listing is presented by CENTURY 21 BRAVO REALTY, courtesy of "CDN Global Advisors Ltd." listing brokerage.
Google map



