Units 3-4, 1925 39 Avenue NE, Calgary. T2E 6S8
Description
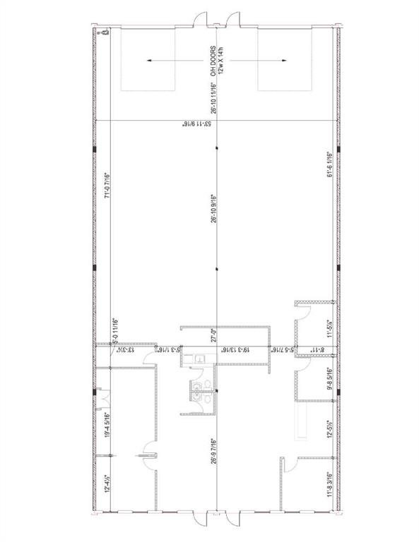
6,008 SF industrial bay in a prime Northeast location near 39 Avenue and 19 Street NE. The office area is approximately 2,000 SF and includes a large reception/showroom area, four private offices, one boardroom, storage room kitchenette/ lunchroom area, and two washrooms. 4,008 SF functional wide warehouse at approx. 53 ft width x 61 ft depth, 18 ft clear ceiling height, 100 amps of power (TBV), and two drive-in door (12 ft W x 14 ft H). Conveniently located near 32 Avenue NE, with close proximity to McKnight Boulevard NE and Deerfoot Trail NE, and surrounded by several restaurants, cafés, and retailers. Available immediately. The lease rate is $13.00 PSF with step-ups, plus operating costs of $8.27 PSF (estimated 2025), for a gross rate of $21.27 PSF. This equates to approximately $10,700 per month, plus utilities and GST. Available immediately. Please note: no automotive use permitted and does not accommodate 53’ trailers.
Listing Information
For fast response, please email us via the “Inquiry Via Email” button with your contact information.
Listing MLS#:A2300389
Units 3-4, 1925 39 Avenue NE,
Calgary. T2E 6S8
Liang Commercial Real Estate
To purchase a business or property, please visit "Our People", to find a commercial expert who specializes in the type of business or property you are looking for, speaks your language, and has an office in your city.
This listing is presented by CENTURY 21 BRAVO REALTY, courtesy of "CDN Global Advisors Ltd." listing brokerage.
Google map



