233 31 Street N, Lethbridge. T1H 3Z4
Description
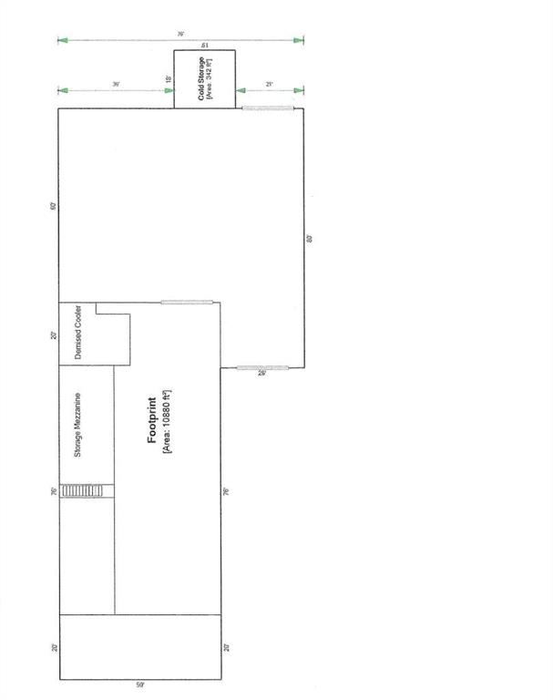
Air conditioning throughout including the warehouse. The building offers overhead doors, loading docks, warehouse, mezzanine, reception and offices. Onsite parking and storage.
Listing Information
For fast response, please email us via the “Inquiry Via Email” button with your contact information.
Listing MLS#:A2269126
233 31 Street N,
Lethbridge. T1H 3Z4
Liang Commercial Real Estate
To purchase a business or property, please visit "Our People", to find a commercial expert who specializes in the type of business or property you are looking for, speaks your language, and has an office in your city.
This listing is presented by CENTURY 21 BRAVO REALTY, courtesy of "Bankers Commercial Real Estate" listing brokerage.
Google map



